
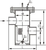
SRBIIIW籃式過濾器是一種為保證(zheng)管(guan)網系統的(de)嚴密(mi)性,進出料(liao)接(jie)口端面(mian)型(xing)式設(she)計(ji)成(cheng)對焊(han)(han)連接(jie),適(shi)用于輸(shu)送職(zhi)業性接(jie)觸(chu)危害程(cheng)度I級(ji)或II級(ji)介質的(de)高低(di)接(jie)管(guan)平底(di)籃式過(guo)濾(lv)(lv)(lv)(lv)器,其筒(tong)體(ti)頂部(bu)焊(han)(han)接(jie)有(you)(you)連接(jie)法蘭(lan)(lan),并通(tong)過(guo)螺(luo)栓螺(luo)母固定(ding)設(she)置有(you)(you)與(yu)之(zhi)配套的(de)法蘭(lan)(lan)蓋,法蘭(lan)(lan)與(yu)法蘭(lan)(lan)蓋之(zhi)間采用墊片密(mi)封。筒(tong)體(ti)左側(ce)中(zhong)上部(bu)和(he)右側(ce)中(zhong)下部(bu)分(fen)(fen)(fen)別焊(han)(han)接(jie)有(you)(you)進、出料(liao)接(jie)管(guan),內(nei)部(bu)焊(han)(han)裝有(you)(you)圓環形擋圈以(yi)及套裝在其上且將(jiang)入口和(he)出口分(fen)(fen)(fen)隔開的(de)帶提手(shou)的(de)濾(lv)(lv)(lv)(lv)籃,濾(lv)(lv)(lv)(lv)籃由籃狀濾(lv)(lv)(lv)(lv)筒(tong)和(he)金屬(shu)絲編織網兩(liang)部(bu)分(fen)(fen)(fen)組成(cheng),濾(lv)(lv)(lv)(lv)筒(tong)頂部(bu)平面(mian)為圓形,恰好與(yu)環形擋圈相配合,確保兩(liang)者(zhe)接(jie)觸(chu)面(mian)之(zhi)間的(de)緊密(mi)貼合,進而保證(zheng)密(mi)封性,使含雜質物(wu)料(liao)能(neng)夠迅速進入濾(lv)(lv)(lv)(lv)籃內(nei)過(guo)濾(lv)(lv)(lv)(lv)干凈。本產(chan)品有(you)(you)效過(guo)濾(lv)(lv)(lv)(lv)面(mian)積(ji)(濾(lv)(lv)(lv)(lv)芯的(de)凈過(guo)流面(mian)積(ji))一般為進口截面(mian)積(ji)的(de)3倍~10倍,其主要(yao)型(xing)號有(you)(you)SRBIII5、SRBIV5和(he)SRBIIIW、SRBIVW等。
| 序號 | 部件名稱 | 材料名稱 | |||||
| 1 | 筒 體 | 20# | Q345 | 304 | 304L | 316 | 316L |
| 2 | 高低接管 | 20# | Q345 | 304 | 304L | 316 | 316L |
| 3 | 環形擋圈 | Q235B | Q345 | 304 | 304L | 316 | 316L |
| 4 | 筒體法蘭 | A105 | Q345 | 304 | 304L | 316 | 316L |
| 5 | 墊 片 | 聚四氟乙烯、金屬環形墊、金屬纏繞墊(帶內外環) | |||||
| 6 | 法 蘭 蓋 | Q235B | Q345 | 304 | 304L | 316 | 316L |
| 7 | 濾 籃 | 304 | 304 | 304 | 304L | 316 | 316L |
| 8 | 底部平板 | Q235B | Q345 | 304 | 304L | 316 | 316L |
| 9 | 排放絲堵 | 304 | 304 | 304 | 304L | 316 | 316L |
| 公稱壓力PN(MPa) | 1.0 | 1.6 | 2.5 | 4.0 | 2.0 | 5.0 |
| 水壓強度試驗壓力(MPa) | 1.5 | 2.4 | 3.75 | 6.0 | 3.0 | 7.5 |
| 氣密性試驗壓力(MPa) | 1.0 | 1.6 | 2.5 | 4.0 | 2.0 | 5.0 |
| 設計制造 | SH/T 3411-2017石油化工泵用過濾器選用、檢驗及驗收規范 | |||||
| 對焊端部 | 符合GB/T 12459、SH/T 3408、ASME B16.9、ANSI B16.9的規定 | |||||
| 檢驗試驗 | SH/T 3411-2017石油化工泵用過濾器選用、檢驗及驗收規范 | |||||
| 過濾精度 | 2目 ~ 600目 | |||||
| 公稱壓力 PN | 公稱通徑 DN | 結構尺寸/mm | 排放口 B | ||||
| ? | L | H1 | H2 | H3 | |||
| 10 | 25 | 89 | 220 | 110 | 70 | 280 | R ? |
| 32 | 89 | 220 | 110 | 70 | 285 | R ? | |
| 40 | 114 | 280 | 120 | 100 | 340 | R ? | |
| 50 | 114 | 280 | 120 | 100 | 340 | R ? | |
| 65 | 140 | 330 | 160 | 110 | 400 | R ? | |
| 80 | 168 | 340 | 180 | 140 | 460 | R ? | |
| 100 | 219 | 420 | 220 | 170 | 550 | R ? | |
| 125 | 273 | 500 | 310 | 220 | 720 | R ? | |
| 150 | 273 | 500 | 310 | 220 | 720 | R ? | |
| 200 | 325 | 560 | 390 | 280 | 900 | R ? | |
| 250 | 426 | 660 | 480 | 320 | 1070 | R ? | |
| 300 | 478 | 750 | 640 | 400 | 1360 | R ? | |
| 表中未列出的其他規格參數,請咨詢汗越閥門技術部! | |||||||

上一條:LPG籃式過濾器
下一條:SRBIW籃式過濾器
