
襯四氟T型過濾器是一種(zhong)由金屬殼(ke)體承受載(zai)荷,并在它(ta)與介質(zhi)接觸(chu)的(de)(de)(de)位置(zhi)包(bao)覆有(you)(you)氟塑料(liao)層,通過聚四氟乙烯濾(lv)筒及(ji)濾(lv)網把物料(liao)中的(de)(de)(de)固體顆粒物截留在其表面(mian),從而保護下游(you)管道(dao)設備免受損(sun)壞、污染(ran)和堵塞,保證介質(zhi)滿(man)足工藝要求(qiu)和生產裝置(zhi)正(zheng)常穩定運行的(de)(de)(de)襯(chen)氟T型過濾(lv)器。本產品采用氟塑料(liao)作為襯(chen)里(li)材料(liao),具有(you)(you)高(gao)耐腐蝕性能,而以鋼制三(san)通、法蘭和盲板作為骨架結構,則可以保障其擁有(you)(you)良好的(de)(de)(de)強度(du)。
襯四氟(fu)T型過濾器襯里加(jia)工采用模(mo)(mo)壓成(cheng)型工藝,其先將(jiang)適量的氟(fu)塑料(liao)(粉狀(zhuang)(zhuang)、顆粒狀(zhuang)(zhuang)、纖維狀(zhuang)(zhuang)、片狀(zhuang)(zhuang)和(he)碎屑狀(zhuang)(zhuang)等)放入(ru)成(cheng)型的模(mo)(mo)腔(qiang)(qiang)中,然(ran)后閉(bi)合,放在加(jia)熱爐內加(jia)熱到(dao)相應溫(wen)度,并在壓力作用下熔融流動,緩慢充(chong)滿(man)整個型腔(qiang)(qiang)而取(qu)得型腔(qiang)(qiang)所賦予的形(xing)狀(zhuang)(zhuang),隨(sui)著氟(fu)塑料(liao)化學反應程(cheng)(cheng)度的增加(jia),熔體逐漸失去流動性變(bian)成(cheng)不熔的體型結構而成(cheng)為固體,經冷卻到(dao)合適的溫(wen)度打開模(mo)(mo)具,而得到(dao)成(cheng)品,從而完成(cheng)模(mo)(mo)壓過程(cheng)(cheng)。
| 序號 | 部件名稱 | 材料名稱 | |||||
| 1 | 殼 體 | Q235B | 20# | 304 | 304L | 316 | 316L |
| 2 | 法 蘭 | Q235B | A105 | 304 | 304L | 316 | 316L |
| 3 | 濾 座 | Q235B | Q235B | 304 | 304L | 316 | 316L |
| 4 | 襯 里 層 | F46/FEP聚全氟乙丙烯、F4/PTFE聚四氟乙烯、PFA可溶性聚四氟乙烯 | |||||
| 5 | 濾 網 | F46/FEP聚全氟乙丙烯、F4/PTFE聚四氟乙烯、PFA可溶性聚四氟乙烯 | |||||
| 6 | 法 蘭 蓋 | Q235B | Q235B | 304 | 304L | 316 | 316L |
| 7 | 螺 栓 | 35CrMoA | 35CrMoA | 304 | 304 | 316 | 316 |
| 8 | 螺 母 | 35CrMo | 35CrMo | 304 | 304 | 316 | 316 |
| 公稱壓力PN(MPa) | 0.25 | 0.6 | 1.0 | 1.6 | 2.5 | 2.0 |
| 殼體試驗壓力(MPa) | 0.375 | 0.9 | 1.5 | 2.4 | 3.75 | 3.0 |
| 氣密封試驗壓力(MPa) | 0.25 | 0.6 | 1.0 | 1.6 | 2.5 | 2.0 |
| 設計制造 | HG/T 3704-2003 氟塑料襯里閥門通用技術條件 | |||||
| 法蘭標準 | JB/T 81~82、GB/T 9115~9119、HG/T 20592~20615、SH/T 3406、ASME B16.5等 | |||||
| 檢驗驗收 | HG/T 3704-2003 氟塑料襯里閥門通用技術條件 | |||||
| 過濾精度 | 10目 ~ 200目 | |||||
| 工作溫度 | -29℃ ~ 180℃ | |||||
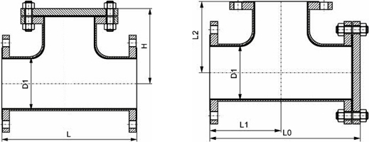
| 公稱壓力 PN | 公稱通徑 DN | 直流式尺寸/mm | 折流式尺寸/mm | ||||
| D1 | H | L | L0 | L1 | L2 | ||
| 20 (Class150) | 50 | 60.3 | 149 | 250 | 277 | 128 | 128 |
| 65 | 76.1 | 170 | 292 | 316 | 146 | 146 | |
| 80 | 88.9 | 181.5 | 312 | 337.5 | 156 | 156 | |
| 100 | 114.3 | 205 | 362 | 388 | 181 | 181 | |
| 125 | 139.7 | 240 | 426 | 453 | 213 | 213 | |
| 150 | 168.3 | 259.5 | 464 | 491.5 | 232 | 232 | |
| 200 | 219.1 | 311 | 560 | 591 | 280 | 280 | |
| 250 | 273.0 | 350.5 | 636 | 668.5 | 318 | 318 | |
| 300 | 323.9 | 400 | 736 | 768 | 368 | 368 | |
| 表中未列出的其他規格參數,請咨詢汗越閥門技術部! | |||||||

