
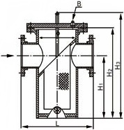
直通籃式過濾器是(shi)一種利用筒體(ti)內(nei)(nei)(nei)裝置的濾(lv)籃(lan)(lan)(lan),對液態及(ji)氣態介質中(zhong)(zhong)的固體(ti)雜質進行(xing)過(guo)(guo)濾(lv),從而(er)使物(wu)(wu)料(liao)滿足工(gong)藝設計(ji)要求,保(bao)證(zheng)泵、壓(ya)縮機、儀(yi)表等正常(chang)(chang)穩定運(yun)行(xing)的法蘭(lan)連接直通(tong)平底(di)(di)籃(lan)(lan)(lan)式過(guo)(guo)濾(lv)器。其(qi)筒體(ti)由主管、接管、法蘭(lan)和底(di)(di)部平板組(zu)焊而(er)成,進出(chu)口(kou)在同一根軸(zhou)線上,上口(kou)成45°斜口(kou)的濾(lv)籃(lan)(lan)(lan)正置于筒內(nei)(nei)(nei)橢圓環形濾(lv)網(wang)支撐座上,并通(tong)過(guo)(guo)蓋板壓(ya)緊(jin)固定,當流(liu)(liu)體(ti)從入口(kou)流(liu)(liu)入筒體(ti)中(zhong)(zhong)后(hou)從上方進入濾(lv)籃(lan)(lan)(lan)內(nei)(nei)(nei)腔,經(jing)濾(lv)網(wang)過(guo)(guo)濾(lv)后(hou)從四(si)周流(liu)(liu)入籃(lan)(lan)(lan)狀濾(lv)筒外壁(bi)與(yu)筒體(ti)內(nei)(nei)(nei)壁(bi)之(zhi)間的空(kong)間內(nei)(nei)(nei),然后(hou)經(jing)出(chu)口(kou)流(liu)(liu)出(chu),其(qi)中(zhong)(zhong)的固體(ti)顆粒則沉積在濾(lv)籃(lan)(lan)(lan)內(nei)(nei)(nei)。本產品的核心部件是(shi)由濾(lv)筒和濾(lv)網(wang)組(zu)成的濾(lv)籃(lan)(lan)(lan),其(qi)中(zhong)(zhong)濾(lv)筒通(tong)常(chang)(chang)采用不銹鋼(gang)材(cai)(cai)質制作,當液體(ti)及(ji)氣體(ti)物(wu)(wu)料(liao)或(huo)工(gong)藝過(guo)(guo)程對濾(lv)筒材(cai)(cai)料(liao)有特殊(shu)要求時,可選用其(qi)他材(cai)(cai)料(liao)。
| 序號 | 部件名稱 | 材料名稱 | |||||
| 1 | 筒 體 | 20# | 15CrMo | 304 | 304L | 316 | 316L |
| 2 | 接 管 | 20# | 15CrMo | 304 | 304L | 316 | 316L |
| 3 | 支 撐 座 | Q235-B | 15CrMo | 304 | 304L | 316 | 316L |
| 4 | 法 蘭 | A105 | 15CrMo | 304 | 304L | 316 | 316L |
| 5 | 墊 片 | 聚四氟乙烯、金屬環形墊、金屬纏繞墊(帶內外環) | |||||
| 6 | 蓋 板 | Q235-B | 15CrMo | 304 | 304L | 316 | 316L |
| 7 | 平 底 | Q235-B | 15CrMo | 304 | 304L | 316 | 316L |
| 8 | 濾 籃 | 304 | 304 | 304 | 304L | 316 | 316L |
| 9 | 螺 塞 | 304 | 304 | 304 | 304L | 316 | 316L |
| 公稱壓力PN(MPa) | 1.0 | 1.6 | 2.5 | 4.0 | 2.0 | 5.0 |
| 殼體試驗壓力(MPa) | 1.5 | 2.4 | 3.75 | 6.0 | 3.0 | 7.5 |
| 氣密性試驗壓力(MPa) | 1.0 | 1.6 | 2.5 | 4.0 | 2.0 | 5.0 |
| 設計制造 | SH/T 3411-2017、HG/T 21637-2021、JB/T 7538-2016 | |||||
| 法蘭標準 | JB/T 81~82、GB/T 9115~9119、HG/T 20592~20615、SH/T 3406、ASME B16.5等 | |||||
| 檢驗驗收 | SH/T 3411-2017、HG/T 21637-2021、JB/T 7538-2016 | |||||
| 濾網規格 | 2目 ~ 600目 | |||||
| 公稱壓力 PN | 公稱通徑 DN | 結構尺寸/mm | 排放口 B | ||||
| D1 | L | H1 | H2 | H | |||
| 16 | 25 | 89 | 220 | 160 | 260 | 480 | R ? |
| 32 | 89 | 220 | 165 | 270 | 495 | R ? | |
| 40 | 114 | 280 | 180 | 300 | 550 | R ? | |
| 50 | 114 | 280 | 180 | 300 | 550 | R ? | |
| 65 | 140 | 330 | 220 | 350 | 650 | R ? | |
| 80 | 168 | 340 | 260 | 400 | 740 | R ? | |
| 100 | 219 | 420 | 310 | 470 | 880 | R ? | |
| 150 | 273 | 500 | 430 | 620 | 1175 | R ? | |
| 200 | 325 | 560 | 530 | 780 | 1495 | R ? | |
| 250 | 426 | 660 | 640 | 930 | 1810 | R ? | |
| 300 | 478 | 750 | 840 | 1200 | 2310 | R ? | |
| 表中未列出的其他規格參數,請咨詢汗越閥門技術部! | |||||||

