
氣動保溫球閥主要(yao)由保(bao)(bao)溫夾套球閥(fa)(fa)(fa)和(he)氣動(dong)執(zhi)行(xing)機(ji)構(gou)組成,外(wai)裝控(kong)制系統(tong),通(tong)過電(dian)(dian)磁(ci)閥(fa)(fa)(fa)的(de)(de)(de)(de)通(tong)電(dian)(dian)或(huo)(huo)斷電(dian)(dian),實現閥(fa)(fa)(fa)門(men)的(de)(de)(de)(de)全開(kai)或(huo)(huo)全關(guan)動(dong)作,以達到對管道內(nei)介質的(de)(de)(de)(de)流通(tong)或(huo)(huo)截斷。其在(zai)閥(fa)(fa)(fa)體(ti)的(de)(de)(de)(de)外(wai)表面加焊一(yi)層(ceng)夾套,在(zai)夾套上設有保(bao)(bao)溫加熱(re)流體(ti)入口(kou)和(he)出(chu)口(kou),且在(zai)正(zheng)下方設置(zhi)有排泄(xie)口(kou),當閥(fa)(fa)(fa)門(men)有介質通(tong)過時(shi),保(bao)(bao)溫流體(ti)同時(shi)也(ye)要(yao)接(jie)入,當閥(fa)(fa)(fa)關(guan)閉時(shi),保(bao)(bao)溫流體(ti)在(zai)夾套中流動(dong)提供的(de)(de)(de)(de)熱(re)量使閥(fa)(fa)(fa)內(nei)的(de)(de)(de)(de)介質不凝固(gu)或(huo)(huo)結晶,確保(bao)(bao)閥(fa)(fa)(fa)門(men)設備(bei)能正(zheng)常運轉(zhuan)。該閥(fa)(fa)(fa)與執(zhi)行(xing)機(ji)構(gou)采用(yong)直(zhi)接(jie)連接(jie)的(de)(de)(de)(de)方式(shi),其氣缸亦配行(xing)程限位開(kai)關(guan)、電(dian)(dian)磁(ci)閥(fa)(fa)(fa)、空氣過濾(lv)減壓閥(fa)(fa)(fa)及(ji)0.4 ~ 0.7MPa氣源即(ji)可實現開(kai)關(guan)操作,并送(song)出(chu)二對無(wu)源觸(chu)點信(xin)號指示(shi)閥(fa)(fa)(fa)門(men)的(de)(de)(de)(de)開(kai)關(guan)。本產品氣動(dong)執(zhi)行(xing)器(qi)有單(dan)作用(yong)和(he)雙作用(yong)兩種類型,單(dan)作用(yong)式(shi)的(de)(de)(de)(de)主要(yao)優點是一(yi)旦(dan)動(dong)力源發生故障,閥(fa)(fa)(fa)門(men)將按(an)控(kong)制系統(tong)的(de)(de)(de)(de)要(yao)求自動(dong)處于開(kai)啟或(huo)(huo)關(guan)閉的(de)(de)(de)(de)位置(zhi)。
| 序號 | 部件名稱 | 材料名稱 | ||||
| 1 | 閥 體 | WCB | CF8 | CF3 | CF8M | CF3M |
| 2 | 閥座壓蓋 | WCB | CF8 | CF3 | CF8M | CF3M |
| 3 | 閥 座 | R-PTFE、PTFE、TEFLON、NYLON、PPL、PEEK、DEVLON、不銹鋼+硬質合金 | ||||
| 4 | 球 體 | 2Cr13 | 304 | 304L | 316 | 316L |
| 5 | 閥 桿 | 2Cr13 | 304 | 304L | 316 | 316L |
| 6 | 填料壓板 | WCB | CF8 | CF3 | CF8M | CF3M |
| 7 | 填 料 | GRAPHITE、R-PTFE、PTFE、TEFLON、PCTFE | ||||
| 8 | 保溫夾套 | Q235B | 304 | 304 | 304 | 304 |
| 9 | 螺 釘 | 35 | 304 | 304 | 316 | 316 |
| 公稱壓力PN(MPa) | 1.6 | 2.5 | 4.0 | 6.3 | 10.0 |
| 殼體試驗壓力(MPa) | 2.4 | 3.75 | 6.0 | 9.45 | 15.0 |
| 高壓液體密封試驗壓力(MPa) | 1.76 | 2.75 | 4.4 | 6.93 | 11.0 |
| 低壓氣體密封試驗壓力(MPa) | 0.4~0.7 | 0.4~0.7 | 0.4~0.7 | 0.4~0.7 | 0.4~0.7 |
| 設計制造 | JB/T 13458、GB/T 12237、GB/T 21385、API 608、ASME B16.34 | ||||
| 結構長度 | JB/T 13458、GB/T 12221、ASME B16.10 | ||||
| 法蘭標準 | JB/T 79、GB/T 9113、HG/T 20592、HG/T 20615、SH/T 3406、ASME B16.5等 | ||||
| 檢驗試驗 | GB/T 13927、GB/T 26480、JB/T 9092、API 598 | ||||
| 可配附件 | 行程限位開關、電磁閥、空氣過濾減壓閥、手輪操作機構等 | ||||
| 氣源壓力 | 0.4MPa ~ 0.7MPa | ||||
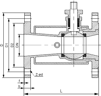
| 公稱壓力 PN | 公稱通徑 DN | 外形及連接尺寸/mm | |||||
| L | D | D1 | D2 | b-f | Z-?d | ||
| 16 | 15 | 140 | 95 | 65 | 45 | 16-2 | 4-14 |
| 20 | 140 | 105 | 75 | 58 | 18-2 | 4-14 | |
| 25 | 160 | 115 | 85 | 68 | 18-2 | 4-14 | |
| 32 | 165 | 140 | 100 | 78 | 18-2 | 4-18 | |
| 40 | 180 | 150 | 110 | 88 | 18-2 | 4-18 | |
| 50 | 200 | 165 | 125 | 102 | 18-2 | 4-18 | |
| 65 | 220 | 185 | 145 | 122 | 18-2 | 8-18 | |
| 80 | 250 | 200 | 160 | 138 | 20-2 | 8-18 | |
| 100 | 280 | 220 | 180 | 158 | 20-2 | 8-18 | |
| 125 | 320 | 250 | 210 | 188 | 22-2 | 8-18 | |
| 150 | 360 | 285 | 240 | 212 | 22-2 | 8-22 | |
| 200 | 400 | 340 | 295 | 268 | 24-2 | 12-22 | |
| 表中未列出的其他規格尺寸,請咨詢汗越閥門技術部! | |||||||

如果你需訂購我廠保溫球閥產品,咨詢時煩請說明公稱壓力、公稱通徑、閥體和內件材料(liao)、使用介質、工作溫(wen)度(du)、保(bao)溫(wen)加(jia)熱(re)流體入口、出口及排(pai)泄口連接(jie)形(xing)式(shi)等(deng),本(ben)產品閥體結構(gou)型式(shi)有(you)一(yi)片式(shi)和二片式(shi)兩種。
