
美標電站閘閥流道采(cai)(cai)用等(deng)徑直通結構,管路中介質可(ke)以(yi)很容易從(cong)入口端流入,較大降低了流阻系數與(yu)能量(liang)的(de)(de)損(sun)耗,其閘板采(cai)(cai)用楔(xie)式彈性閘板,可(ke)在(zai)高溫高壓(ya)狀態下開啟和關閉(bi)(bi)。該閥(fa)(fa)的(de)(de)閥(fa)(fa)體與(yu)閥(fa)(fa)蓋的(de)(de)連接采(cai)(cai)用壓(ya)力(li)(li)自緊(jin)密封結構,楔(xie)形(xing)帶槽的(de)(de)密封環(huan)與(yu)四開環(huan)組合,能使密封環(huan)在(zai)高壓(ya)下變形(xing),實現可(ke)靠密封,壓(ya)力(li)(li)越(yue)高密封性能越(yue)好。填料(liao)壓(ya)蓋和壓(ya)套(tao)采(cai)(cai)用分體設計,保證閥(fa)(fa)桿的(de)(de)同心度。本產(chan)品閥(fa)(fa)蓋上設有推(tui)力(li)(li)球軸承及油杯,可(ke)定期(qi)補充固(gu)體潤滑油,減少啟閉(bi)(bi)力(li)(li)矩(ju),保持(chi)輕(qing)松(song)啟閉(bi)(bi)。
美(mei)標(biao)電站閘閥(fa)可(ke)在閥(fa)的(de)進出口體(ti)腔內安裝旁通閥(fa),使(shi)閥(fa)在關閉狀態下(xia),打開旁通閥(fa),平衡進出口壓(ya)力,以減少(shao)閥(fa)的(de)開啟力及(ji)閘板與閥(fa)座密(mi)封面的(de)磨損(sun)。其填料選用(yong)編結石墨、柔性(xing)石墨填料加中間填料套的(de)組合(he),既具(ju)有較(jiao)好的(de)密(mi)封性(xing)能(neng)又有相(xiang)應的(de)強(qiang)度,確保(bao)閥(fa)門沒有外泄(xie)漏,符合(he)環保(bao)要(yao)求。該(gai)閥(fa)的(de)特點是管路中介(jie)質(zhi)在高溫高壓(ya)狀態下(xia)密(mi)封可(ke)靠(kao),零泄(xie)漏,可(ke)承(cheng)受很大(da)的(de)軸向力和徑向力。本產(chan)品特適合(he)安裝在火電站汽水系統中,用(yong)于(yu)接通或切斷腐蝕性(xing)不強(qiang)的(de)液體(ti)、氣體(ti)介(jie)質(zhi)流。
| 序號 | 零件名稱 | 材料名稱 | |||||
| 1 | 閥 體 | A216 WCB | A217 WC1 | A217 WC6 | A217 WC9 | A217 C12A | A351 CF8C |
| 2 | 閥 座 | A105 | A182 F11 | A182 F11 | A182 F22 | A182 F91 | A182 F347 |
| 3 | 閘 板 | A216 WCB | A217 WC1 | A217 WC6 | A217 WC9 | A217 C12A | A351 CF8C |
| 4 | 閥 桿 | A182 F6a CL.2 | A182 F11 | A182 F11 | A182 F22 | A182 F91 | A182 F347 |
| 5 | 閥 蓋 | A216 WCB | A217 WC1 | A217 WC6 | A217 WC9 | A217 C12A | A351 CF8C |
| 6 | 密 封 圈 | GRAPHITE | GRAPHITE | GRAPHITE | GRAPHITE | GRAPHITE | GRAPHITE |
| 7 | 四 開 環 | A182 F6a CL.2 | A182 F11 | A182 F11 | A182 F22 | A182 F91 | A182 F347 |
| 8 | 填料壓蓋 | A216 WCB | A217 WC1 | A217 WC6 | A217 WC9 | A217 C12A | A351 CF8C |
| 9 | 填 料 | GRAPHITE | GRAPHITE | GRAPHITE | GRAPHITE | GRAPHITE | GRAPHITE |
| 公稱壓力Class | 150 | 300 | 600 | 900 | 1500 | 2500 |
| 強度試驗壓力/MPa | 3.0 | 7.5 | 16.5 | 22.5 | 39.2 | 65.2 |
| 上密封試驗壓力/MPa | 2.2 | 5.5 | 12.1 | 16.5 | 28.6 | 47.75 |
| 密封試驗壓力/MPa | 2.2 | 5.5 | 12.1 | 16.5 | 28.6 | 47.75 |
| 設計制造 | API 600:2021 鋼制閘閥—法蘭連接端和對焊端,螺栓連接閥蓋 | |||||
| 結構長度 | ASME B16.10:2017 閥門(面-面和端-端)結構長度 | |||||
| 連接法蘭 | ASME B16.5:2017、ASME B16.47:2017、ANSI B16.5:2013 | |||||
| 檢驗試驗 | API 598:2016 閥門檢驗和試驗 | |||||
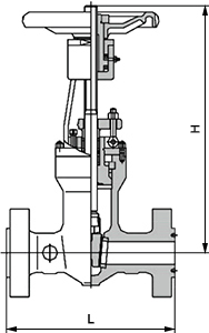
| 公稱壓力 Class | 公稱尺寸 NPS | 外形尺寸/mm | 公稱壓力 Class | 公稱尺寸 NPS | 外形尺寸/mm | ||
| L | H | L | H | ||||
| 900 | 2 | 368 | 520 | 1500 | 2 | 368 | 615 |
| 3 | 381 | 650 | 3 | 473 | 705 | ||
| 4 | 457 | 750 | 4 | 546 | 925 | ||
| 6 | 610 | 800 | 6 | 705 | 1190 | ||
| 8 | 737 | 940 | 8 | 832 | 1525 | ||
| 10 | 838 | 918 | 10 | 991 | 998 | ||
| 12 | 965 | 1041 | 12 | 1130 | 1141 | ||
| 14 | 1029 | 1141 | 14 | 1257 | 1249 | ||
| 16 | 1130 | 1285 | 16 | 1384 | 1351 | ||
| 18 | 1219 | 1445 | 18 | 1537 | 1535 | ||
| 20 | 1321 | 1670 | 20 | 1664 | 1726 | ||
| 24 | 1549 | 2083 | 24 | 1943 | 2150 | ||
| 表中未列出的其他規格參數,請咨詢汗越閥門技術部! | |||||||

如果你需訂購我廠電站閥產品(pin),咨詢時煩請說明公稱(cheng)壓力、公稱(cheng)尺寸、閥體材質(zhi)(zhi)、使(shi)用(yong)介質(zhi)(zhi)、工作(zuo)溫度等,法蘭標(biao)準及法蘭密(mi)封面形式等,本(ben)產品(pin)常用(yong)的驅動方(fang)式有手動、傘齒(chi)輪、電動裝置(zhi)等,也可按用(yong)戶要(yao)求選用(yong)氣動或液動以(yi)及其他等。
