
高溫高壓球閥是一(yi)種適用(yong)于(yu)(yu)公稱壓(ya)力(li)(li)不(bu)(bu)大于(yu)(yu)PN760(Class4500),使用(yong)溫(wen)度(du)不(bu)(bu)超過620℃,介(jie)質為水(shui)、蒸汽的(de)(de)(de)火電(dian)站(zhan)用(yong)高(gao)(gao)溫(wen)高(gao)(gao)壓(ya)球(qiu)閥(fa),其(qi)閥(fa)體材料(liao)可根據管(guan)路中介(jie)質的(de)(de)(de)溫(wen)度(du)、壓(ya)力(li)(li)和性(xing)(xing)質,選(xuan)(xuan)用(yong)碳(tan)素(su)鋼(gang)(如(ru)(ru)A105)、合(he)金結(jie)構鋼(gang)(如(ru)(ru)A182 F11、A182 F22、A182 F91和A182 F92)及奧氏體不(bu)(bu)銹鋼(gang)(如(ru)(ru)A182 F304、A182 F304L、A182 F316、A182 F316L)等(deng),球(qiu)體和閥(fa)座接(jie)觸面經硬(ying)化(hua)(hua)工藝(yi)處理后,表(biao)面硬(ying)度(du)能(neng)達(da)到45~65HRC,滿足了高(gao)(gao)溫(wen)高(gao)(gao)壓(ya)工況的(de)(de)(de)使用(yong)要求,彈(dan)簧選(xuan)(xuan)用(yong)Inconel750鎳基合(he)金,它在800℃以下具有很(hen)高(gao)(gao)的(de)(de)(de)強(qiang)度(du)、韌(ren)性(xing)(xing)和耐(nai)氧化(hua)(hua)性(xing)(xing),疲勞強(qiang)度(du)高(gao)(gao)。該閥(fa)的(de)(de)(de)填(tian)料(liao)結(jie)構一(yi)般采(cai)用(yong)上(shang)、下不(bu)(bu)少于(yu)(yu)一(yi)圈夾不(bu)(bu)銹鋼(gang)絲(si)或(huo)耐(nai)腐(fu)蝕(shi)合(he)金絲(si)編織的(de)(de)(de)柔(rou)(rou)性(xing)(xing)石墨填(tian)料(liao),中間為成(cheng)型(xing)柔(rou)(rou)性(xing)(xing)石墨壓(ya)環。本產品特適合(he)安裝在火力(li)(li)發電(dian)廠的(de)(de)(de)汽水(shui)管(guan)路系(xi)統上(shang),起切斷或(huo)接(jie)通管(guan)道中流動的(de)(de)(de)介(jie)質的(de)(de)(de)作(zuo)用(yong)。
| 序號 | 部件名稱 | 材料名稱 | |||
| 1 | 閥 體 | A182 F11 CL.2 | A182 F22 CL.3 | A182 F91 | 12CrMoV |
| 2 | 閥 桿 | A182 F6a CL.2 | A182 F6a CL.2 | A182 F91 | 12Cr13 |
| 3 | 球 體 | A182 F6a CL.2+STL | A182 F6a CL.2+STL | A182 F91+STL | 12Cr13+STL |
| 4 | 閥 座 | A182 F6a CL.2+STL | A182 F6a CL.2+STL | A182 F91+STL | 12Cr13+STL |
| 5 | 彈 簧 | Inconel750 | Inconel750 | Inconel750 | Inconel750 |
| 6 | 填 料 | GRAPHITE | GRAPHITE | GRAPHITE | GRAPHITE |
| 7 | 填料壓蓋 | A182 F11 CL.2 | A182 F22 CL.3 | A182 F91 | 12CrMoV |
| 8 | 左右閥蓋 | A182 F11 CL.2 | A182 F22 CL.3 | A182 F91 | 12CrMoV |
| 公稱壓力Class | 600 | 900 | 1500 | 2500 |
| 殼體試驗壓力(MPa) | 16.5 | 22.5 | 39.2 | 65.2 |
| 高壓密封試驗壓力(MPa) | 12.1 | 16.5 | 28.6 | 47.75 |
| 低壓密封試驗壓力(MPa) | 0.4~0.7 | 0.4~0.7 | 0.4~0.7 | 0.4~0.7 |
| 設計制造 | GB/T 12224、JB/T 12387、ASME B16.34 | |||
| 結構長度 | GB/T 12221、ASME B16.10 | |||
| 對焊端部 | 按GB/T 12224、ASME B16.25或訂貨合同的規定 | |||
| 承插焊端 | 按GB/T 14383、ASME B16.11或訂貨合同的規定 | |||
| 檢驗試驗 | GB/T 12224、GB/T 26480、API 598 | |||
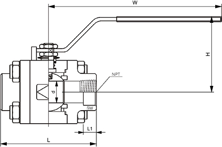
| 公稱壓力 Class | 公稱尺寸 NPS | 結構尺寸/mm | |||||
| d | SW | L1 | L | H | W | ||
| 1500 | ? | 6 | 14.3 | 9.5 | 92 | 53 | 130 |
| ? | 9 | 17.7 | 9.5 | 92 | 53 | 130 | |
| ? | 13 | 21.9 | 9.5 | 92 | 56 | 130 | |
| ? | 19 | 27.3 | 12.5 | 111 | 70 | 160 | |
| 1 | 25 | 34.0 | 12.5 | 127 | 80 | 220 | |
| 1 ? | 32 | 42.8 | 12.5 | 140 | 90 | 250 | |
| 1 ? | 38 | 48.9 | 12.5 | 152 | 100 | 250 | |
| 2 | 49 | 61.2 | 16.0 | 178 | 110 | 290 | |
| 表中未列出的其他規格參數,請咨詢汗越閥門技術部! | |||||||

